¿Qué es BIM?

Modelo de Información del Edificio

  • Una única fuente de verdad: modelo 3D + datos técnicos.
  • Coordinación entre disciplinas (arquitectura, MEP, estructura).
  • Exportables a Revit/IFC para documentación y análisis.
  • Cuantificaciones y mediciones más rápidas y precisas.
  • Menos visitas de obra, mejores decisiones con contexto real.
Quiero BIM en mi proyecto
BIM icono

BIM

Los archivos BIM de Matterport ofrecen una unica fuente de información. Capture datos fotorrealistas en 3D conforme a la obra y deje que Matterport los convierta en archivos BIM para que pueda diseñar, gestionar y construir la aplicación BIM de su elección.

Con Matterport los archivos BIM, se generan a una pequeña parte del coste de la topografía convencional y la documentación conforme a la obra. Su equipo puede centrarse en conseguir mas trabajos en lugar de quedarse estancados documentando las notas de los levantamientos de campo.

OBTENGA MAS INFORMACIÓN SOBRE LOS ARCHIVOS BIM DE MATTERPORT

Notes icono

Notes

COLABORACION

Matterport Notes, una función revolucionaria para cambiar el trabajo en equipo y la eficiencia, le mantiene conectado gracias a un flujo de trabajo integrado para planificar proyectos y hablar sobre los espacios. Esta herramienta de comentarios facil de usar hace que el trabajo en equipo y el intercambio de archivos sea algo rápido y cómodo. Los revisores pueden iniciar conversaciones, añadir @menciones, hashtags, enlaces profundos y archivos adjuntos directamente en sus espacios de Matterport.

Haga todo su trabajo en un solo lugar con un contexto espacial completo. Invite a colaboradores de su organización, comparta archivos adjuntos, haga preguntas y asigne tareas.

  • Colaboración
  • @Menciones & Archivos
  • Notificaciones
  • Flujos de trabajo

Trabajá en un solo lugar con contexto espacial completo. Iniciá conversaciones sobre puntos del recorrido, compartí decisiones y mantené al equipo alineado sin salir del gemelo digital.

Agregá @menciones para notificar a tu equipo, adjuntá imágenes o PDFs y dejá deep links que llevan al punto exacto del espacio donde hay que actuar.

Recibí avisos cuando abren archivos o agregan comentarios. Configurá recordatorios para vencimientos y cerrá temas cuando estén resueltos.

Asigná tareas desde los comentarios, seguí el estado y documentá decisiones sin múltiples visitas presenciales. Ideal para obras, retail y seguros.

Cualquier persona con acceso de edición a su espacio puede ver, crear y comentar con la función Matterport Notes en tiempo real. Notes le permite seguir el proceso y recibir notificaciones cuando se abren archivos o se añaden comentarios. Incluso puede enviar recordatorios, actualizar los plazos o cerrar flujos de trabajo.

Es ideal para cualquier proyecto que implique la documentación del espacio, como es el caso de los contratistas y los diseñadores de interiores que necesitan hablar de las diferentes opciones con los propietarios, los proveedores de seguros que deben confirmar las valoraciones para obtener unas reclamaciones precisas y los minoristas que gestionan los rediseños de las tiendas desde sus escritorios. La version beta abierta de Notes esta disponible para todos los planes de suscripción. Con Matterport Notes, puede iniciar una conversación en cualquier espacio.

VEA COMO FUNCIONES MATTERPORT NOTES

Floorplan imagen
Floorplan icono

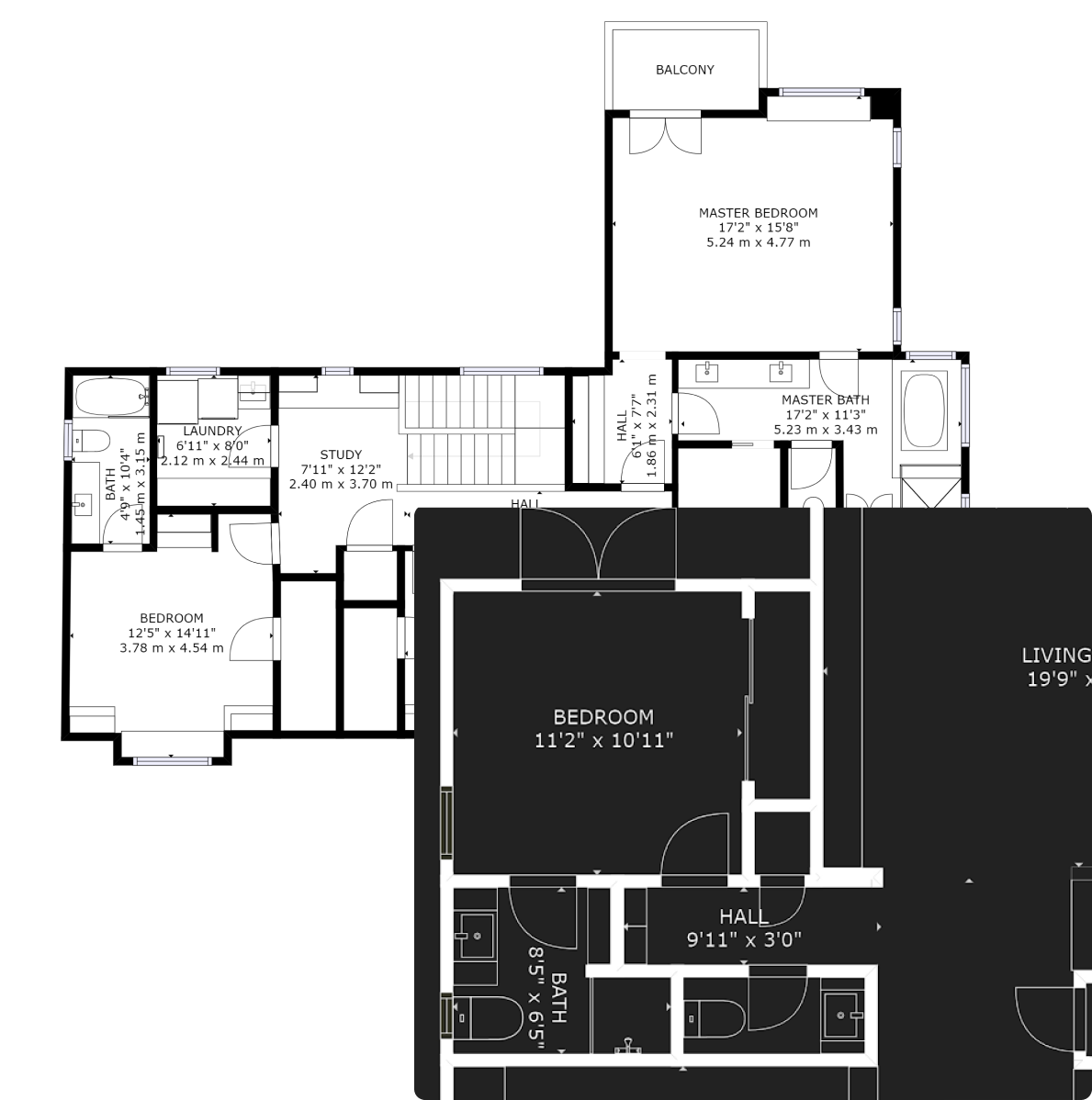
Esquemático

Planos de planta

Los planos de planta esquemáticos son planos de planta profesionales en blanco y negro que pueden crearse de forma rápida y fácil a partir de casi cualquier espacio de Matterport. Con una precisión del 2 % con respecto de la realidad, los planos de planta esquemáticos de Matterport son una representación en 2D de su propiedad, con medidas de las habitaciones e ilustraciones de las características de la propiedad.

MatterPak icono

matterPak

Paquete de activo

El paquete MatterPak es un conjunto de activos digitales que se puede descargar, editar e importar desde MatterPort Cloud con los planos Professional y Business. Los formatos incluyen:

  • Nube de puntos coloreada (.XYZ)

  • Planos de planta de alta resolución y planos de techo reflejados.

  • (.JPG) Varios archivos de varias plantas

  • (.PDF) Todas las plantas en un archivo

  • Archivos de malla 3D (.OBJ) que incluyen los archivos de imagen de mapa de textura necesarias (.JPG)

MatterPak imagen

Un registro totalmente automatico de la nube de puntos de todos los barridos (posiciones de escaneado) que garantiza la precisión de error de un 1 % en comparación con la realidad. los desarrolladores de 3D, los profesionales de diseño y los entusiastas de la realidad virtual pueden utilizar el archivo OBJ para arrancar proyectos en MeshLab y Maya con un modelo 3D de un lugar real.

El paquete MatterPak permite a los arquitectos, ingenieros y profesionales de la construcción importar de forma rápida y facil nubes de puntos, planos de planta de alta resolución e imagenes de plano de techo reflejados en programas de terceros, como 3ds Max, ReCap, Revit o AutoCAD. No está disponible con las capturas de la camara 360 o del smartphone.

Google icono

Google

StreetView

Ponga su negocio en el mapa publicando su recorrido 3D de Matterport en Google Street View (GSV). En Matterport Cloud puede seleccionar el complemento GSV para publicar su espacio en Google Street View.

La publicación de un modelo de Matterport en GSV le permite ofrecer una visión interna de su negocio e invitar a los clientes a obtener mas información. Tambien puede añadir recorridos virtuales de Matterport a su sitio web y descargar otros activos digitales adquiridos durante la captura 3D para utilizarlos en su material de marketing.

Los listados con contenido multimedia enriquecidos, como GSV, se posicionan mejor en los resultados de búsqueda y, una vez encontrandos, generan mas interés e interacción. Según Google:

  • Al buscar empresas, los consumidores utilizan productos de mapas el 44 % de las veces.

  • Los listados con fotos y un recorrido virtual tienen el doble de probabilidades de generar interés.

  • De media, el 41 % de las búsquedas de lugares terminan en una vista presencial.

Street View imagen
Foto 4K
4K icono

Fotos 4k

DE ALTA DEFINICION

Obtenga fotos 4K listas para imprimir de su modelo al instante cuando utilice la cámara Matterport Pro2 3D para escanear un espacio. Matterport generará automáticamente increibles imágenes 4k de su escaneo, pero también seleccionar las suyas propias.

Medición imagen
Medición icono
MODO DE

Medición

Mida con precisión cualquier cosa dentro de su modelo 3D, desde el tamaño de las habitaciones y las puertas hasta los elementos del propio espacio. Con el modo de medición, puede ahorrar tiempo eliminando las múltiples visitas al lugar físico.

Gracias a esta función estándar en Matterport, puede abrir cualquier modelo 3D y medir cualquier elemento dentro del espacio, el cualquier dispositivo. Compruebe si los muebles o el equipo caben en un lugar determinado, o incluso si caben por las puertas, desde su ordenador de sobremesa o smartphone. El modo de medición es una valiosa herramienta para compartir información y liberar el potencial de una colaboración, planificación y utilización mas inteligente del espacio.

Blur Brush icono

Blur Brush

Para la privacidad

Proteja la privacidad y la identidad de las personas que puedan aparecer en sus espacios de Matterport difuminando sus caras o información personal.

Blur Brush se activa mediante un algoritmo de aprendizaje automático cuando se carga un escaneo. Diseñado para difuminar solo las caras humanas, el difuminado automático de caras aporta un nivel adicional de protección cuando se escanea un lugar público, como un museo o una tienda.

El difuminado automático de caras, actualmente en su version BETA, puede desactivarse si es necesario. Está disponible en los planos Starter, professional y Enterprise.

APRENDE COMO FUNCIONA BLUR BRUSH

Brush demo
Maqueta vista
Maqueta icono

Vista de maqueta

CON PERSPECTIVA 3D

La vista de maqueta de Matterport ofrece una perspectiva de plano de planta en 3D fotorrealista y totalmente interactiva. Las vistas de maqueta van mas allá de las fotos 2D, que presentan una sola vista, ya que proporcionan una perspectiva 3D para ayudar a la gente a visualizar como fluyen las habitaciones y la relación espacial entre los espacios (además de proporcionar una manera de navegar rápidamente a cualquier espacio de interés).

La vista de maqueta en 3D se crea automáticamente al subir una propiedad en Matterport Cloud. Aléjese y vea un gemelo digital en 3D de su propiedad desde el exterior y gírelo por cualquier eje para verlo desde cualquier perspectiva. La vista de maqueta proporciona una sensación mas clara del espacio y el tamaño que no se puede igualar solo con fotos y videos de 2D.

MAS INFORMACIÓN SOBRE LA VISTA DE MAQUETA

Recorridos icono

RECORRIDOS

GUIADOS

Matterport simplifica el proceso de creación de recorridos de alta calidad de su modelo 3D. Elija rápida y fácilmente los puntos destacados de su modelo 3D para convertirlos en un recorrido guiado. Tanto si quiere guiar a los contratistas en las reparaciones de una obra, como si quiere promocionar las características claves de una propiedad en venta o alquiler, puede crear un gran recorrido en cuestión de minutos.

Recorridos imagen